Share this Listing
Location
Key Details
$129,000.00
Business Brokerage
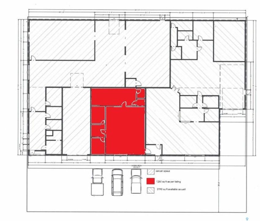
1,280 SQ.FT
1976
Outlook
Description
RENPRO Renovations for Sale! This is your opportunity to own a reputable company in Outlook. Step into a well established business and continue the success of this well known building construction, renovations and retail supplier. The company operates out of the location 119 Railway Avenue West and is currently downsizing to make the opportunity to buy into this business affordable for a new owner. There will be 1280 sq ft available to lease of the building with materials downsized to include: paint and painting supplies inventory, all equipment and shelving to display and mix paint, window coverings - all displays and sample books, flooring - all displays and all flooring related inventory. There is additional lease space available if a person requires more than the 1280 sq ft and can be worked to accommodate your needs. The lease rate is $1400 per month ($13.13 per sq ft) with all utilities included so no need to worry about additional rent costs. Renpro has been in business for over 30 years and as the new owner you will have Goodwill to give your business the head start to succeed. With the growing community of Outlook this is exactly the right time to make a move of acquiring a well established business. Pictures in the listing are mainly of the 1280 sq ft of leased space but there are some pictures of window covering displays and flooring displays that are not in the 1280 sq ft and are for reference only. Call today!
Listing courtesy of Realty Executives Outlook
More Info
City: Outlook
Square Footage: 1280
Year Built: 1976
Type: Business Brokerage
Amenities: Interior Space, Onsite Parking, Store Front
Heating: Air Conditioning, Floor Model Furnace
Parking Facility: Yes
Sale Type: Assets
Listed By: Realty Executives Outlook
