Share this Listing
Location
Key Details
$399,900.00
3 Baths
Detached
Bi-level
1,066 SQ.FT
1975
Regina
Description
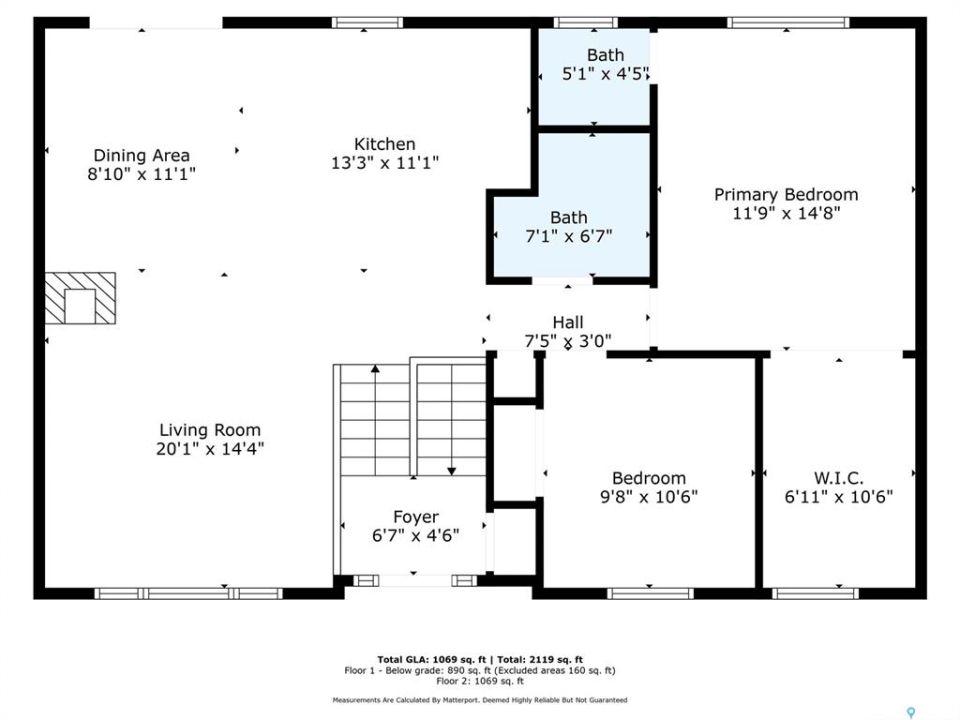
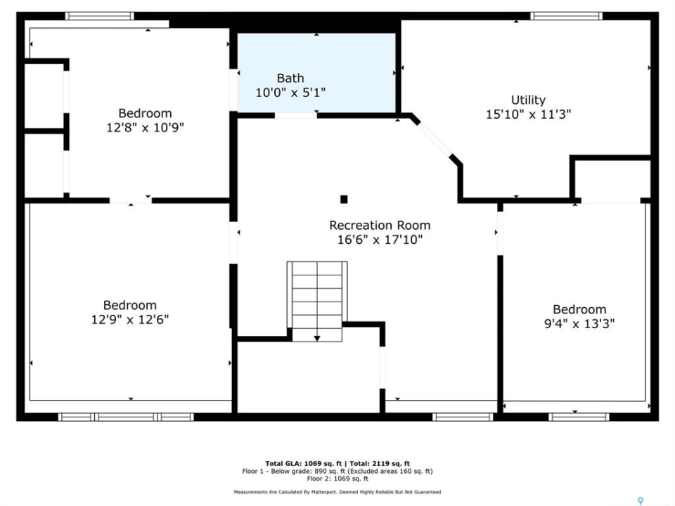
This home features 4 bedrooms and 3 bathrooms, and is located on a spacious lot that is near schools, parks, and public transportation. The main floor showcases an open floor plan, with a combined living room, kitchen, and dining area (the dining room door opens to a two-tiered deck leading to an expansive backyard). There are two generously sized bedrooms, with the master bedroom being distinctive due to its 2-piece ensuite and a walk-in closet measuring 6.11x10.6. The basement also contains two good sized bedrooms, one of which also includes a walk-in closet and could be reverted back to a third bedroom. The main bathroom was renovated in 2014, while the basement bathroom was updated in 2023. Additionally, this property boasts a heated garage, ideal for mechanics, measuring 25 x 27. Numerous updates have been made over the years, including shingles in 2022, a new furnace and central air conditioning in 2023, window replacements in 2014, basement flooring updates in 2023, a tankless hot water system installed in 2023, a heat recovery unit added in 2022, and landscaping improvements in the backyard completed in 2017.
Listing courtesy of Realty Hub Brokerage
More Info
City: Regina
Square Footage: 1066
Year Built: 1975
Style: Bi-level
Type: House
Roof: Asphalt Shingles
Outdoor: Deck, Fenced, Garden Area, Lawn Back, Trees/shrubs
Exterior: Brick,stucco
Furnace: Furnace Rented
Heating: Forced Air, Natural Gas
Features Interior: Air Conditioner (central),heat Recovery Unit,play Structures
Appliances: Fridge,stove,washer,dryer,dishwasher Built In,garage Door Opnr/control(s),hood Fan,microwave,window Treatment
Land Size: 9439.00
Total Acres: 0.2167
Water Heater: Rented
Water Softener: Included
Listed By: Realty Hub Brokerage
