Share this Listing
Location
Key Details
$259,900.00
1 Baths
Attached
Row/townhouse Multi-level
604 SQ.FT
2013
Saskatoon
Description
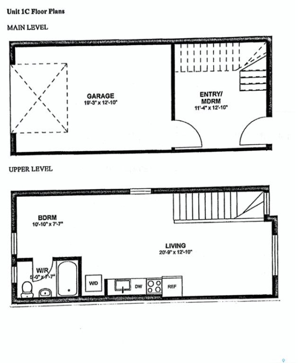
Enjoy urban living at its best in this beautiful loft style studio townhouse in the heart of Saskatoon. The owners designed cabinets for under the stairs for smart storage with a clean look. A custom wardrobe and platform bed with plenty of storage. Upgrades include laundry on the main floor, a Superior Cabinets custom kitchen with Caeserstone countertops, upgraded appliances, under-counter lighting, and a range fan with outdoor ventilation. Graber blinds and George Nelson bubble lamps. Built in 2013, this bright and trendy unit features modern amenities including in-floor radiant heat and private single attached heated garage. This 2-storey townhome faces East overlooking a beautiful, gated courtyard with green space, garden planters, and fruit bearing trees and shrubs. Upon entry, you are greeted by the main floor den/laundry with 9' ceilings, perfect for a home office or gym. The second floor loft is bright and spacious with a ceiling height over 11ft, extended kitchen, dining, living, and bedroom space in addition to the 3pc-bath. As a self-managed development, the condo fees are $305/month which includes heat, internet, building and common area maintenance, garbage, sewer and water. Pets are allowed with approval from the condo board. The location is exceptional with access to the many restaurants, cafes, shops, parks, and river trails that Riversdale provides. This unit is a perfect fit for singles, couples, retirees, or students looking for an affordable and secure place to call home. Please note that this is a studio/bachelor loft townhome and that the 2nd floor bedroom is not enclosed, but rather a bedroom area.
Listing courtesy of Boyes Group Realty Inc.
More Info
City: Saskatoon
Square Footage: 604
Year Built: 2013
Style: Row/townhouse Multi-level
Type: Row/townhouse
Roof: Metal
Outdoor: Garden Area
Exterior: Composite Siding,metal
Heating: In Floor
Features Interior: Air Exchanger
Appliances: Fridge,stove,washer,dryer,air Conditioner(s) Window/portable,dishwasher Built In,garage Door Opnr/control(s),microwave Hood Fan,freezer,window Treatment
Water Heater: Included
Listed By: Boyes Group Realty Inc.
