Share this Listing
Location
Key Details
$13.00
Industrial
40,000 SQ.FT
2024
Saskatoon
Description
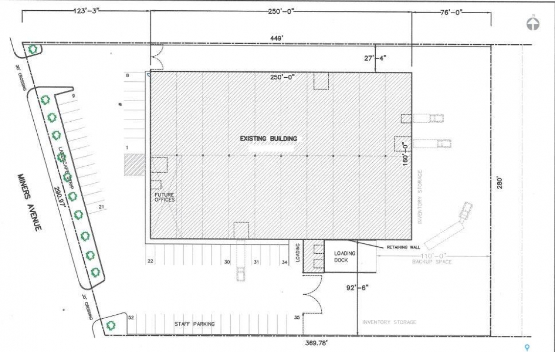
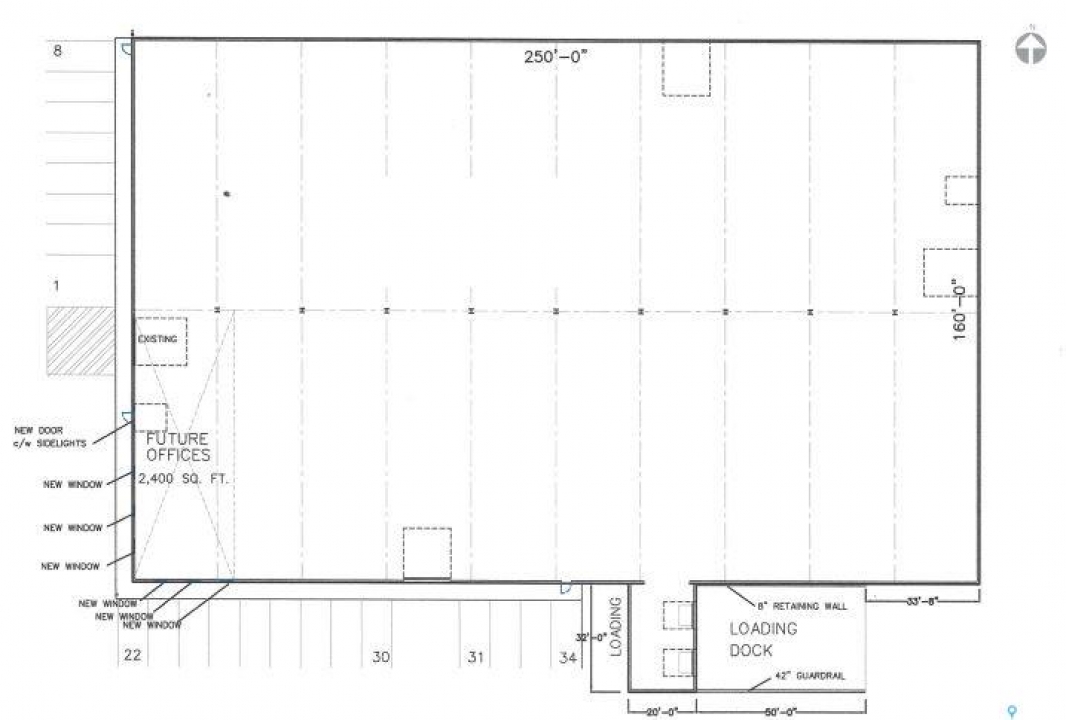
40,000 SF newly constructed warehouse available for lease. Building is located on 2.63 acre site which includes secure, graded and compacted yard. Building includes 4 x grade level OH doors with ability to add dock level loading as required. Store front with paved parking at front of building facing Miners Ave. High voltage + amperage power available. IH Zoning. Building is well suited for a variety of uses. Centrally located in Saskatoon's North Industrial Area, just north of 51st St. This site offers easy access to Idlwyld Dr. and Hwys 11, 12 + 16.
Listing courtesy of Re/max Saskatoon
More Info
City: Saskatoon
Square Footage: 40000
Year Built: 2024
Type: Industrial
Amenities: Fenced Compound, Onsite Parking, Store Front
Heating: Overhead Unit Heater
Warehouse Area: 40000.00
Listed By: Re/max Saskatoon
