Share this Listing
Location
Description
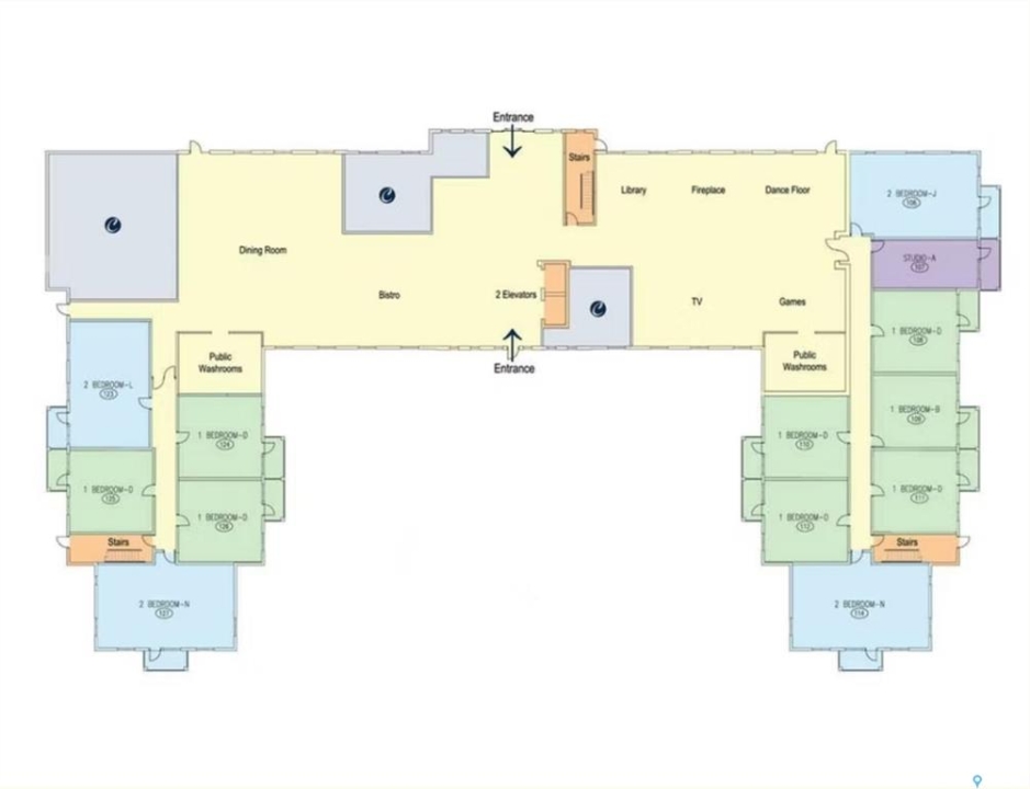
Welcome to Suite 209 – 680 7th Ave E, Cumberland Villas! This inviting second-floor condo offers 473 sq ft of thoughtfully planned living space—sized just right between the cozy studio suites (392 sq ft) and the popular one-bedroom “D” style units (535 sq ft). East-facing with a balcony, this home captures the morning light and offers a comfortable spot to enjoy your coffee or the start of a new day. Inside, you'll find a smart layout that makes great use of space, featuring a generous walk-in closet, a full 4-piece bathroom, an efficient kitchen, and in-suite laundry for everyday ease. A parking stall is included (location to be determined), adding convenience for those who drive or welcome visitors. Life at Cumberland Villas is all about comfort, community, and choice. Residents enjoy friendly staff, inviting common areas, and the flexibility to tailor their lifestyle with a range of optional services. Meals are freshly prepared by an in-house Red Seal chef, and on-site mail delivery means your personal mailbox is just steps from your door. Whether you're relaxing by the fireplace in the library, making use of the craft or workshop areas, or stopping by the Bistro, you'll find that Cumberland Villas offers a warm and welcoming atmosphere. For a tour of Cumberland Villas check out the virtual tour!
Listing courtesy of Re/max Blue Chip Realty
More Info
City: Melville
Square Footage: 473
Year Built: 2012
Style: Multi-level
Type: High-rise (4 Floors Or Higher)
Roof: Asphalt Shingles
Outdoor: Balcony, Garden Area, Lawn Back, Lawn Front, Patio, Trees/shrubs
Amenities: Amenities Room, Dining Facility, Elevator, Exercise Area, Guest Suite, Lounge, Visitor Parking, Wheelchair Access
Exterior: Rock Imitation,siding
Heating: Electric, Forced Air
Features Interior: Accessible By Wheel Chair,air Conditioner (central),elevator
Appliances: Fridge,stove,washer,dryer,dishwasher Built In,hood Fan,window Treatment
Listed By: Re/max Blue Chip Realty

